
東京都墨田区において賃貸マンション「ラグゼナ平井ノース」が竣工いたしました。当賃貸マンションは、「LUXENA」(ラグゼナ)シリーズで初めて「東京こどもすくすく住宅認定制度」を取得いたしました。 「LUXENA」(ラグゼナ)は、当社の技術と経験を活かした高いデザイン性と快適性を兼ね備えたハイグレード賃貸マンションです。 ラグジュアリー(Luxury)な空間が広がる、上質な暮らしを可能(Enable)にしていく、そんな意味合いを込めた名称として「LUXENA」と冠しております。

「東京こどもすくすく住宅認定制度」とは
「東京こどもすくすく住宅認定制度」とは、居住者の安全性や家事のしやすさなどに配慮された住宅で、かつ、子育てを支援する施設やサービスの提供など、 子育てしやすい環境づくりのための取組を行っている優良な住宅を東京都が認定する制度です。 当物件では、遊び場所や保育・教育・医療施設などが徒歩圏にある立地面だけでなく、バルコニーや開放廊下からの転落防止・落下物による危険防止となる構造である点などが評価されました。
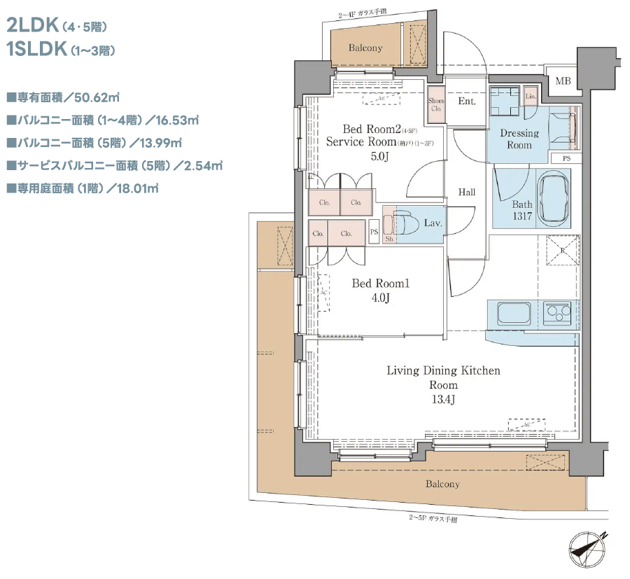
多彩な家族のニーズに応える間取りプラン
オープンなLDKでキッチン・ダイニング・リビングがつながっており、料理や片付けをしながらでも子どもの様子を常に見守れるプラン設計となっています。 また、腰壁付きの対面カウンターが手元をさりげなく隠して子ども側から包丁や火元が見えにくくなっていることで安心感をより高めます。




※掲載の外観完成予想CGは、すべて計画段階の図面を基に描き起こしたもので実際とは異なる場合があります。なお、外観の細部及び設備機器等は一部省略又は簡略化しております。 植栽は計画段階のもので樹種・設定位置・植高・本数等は変更となる場合があります。竣工時には完成予想CG程度には成長しておりません。※家具・調度品等は含まれておりません。実際と質感・色などの見え方が異なる場合があります。※掲載の間取図は計画段階の図面を基に描き起こしたものであり