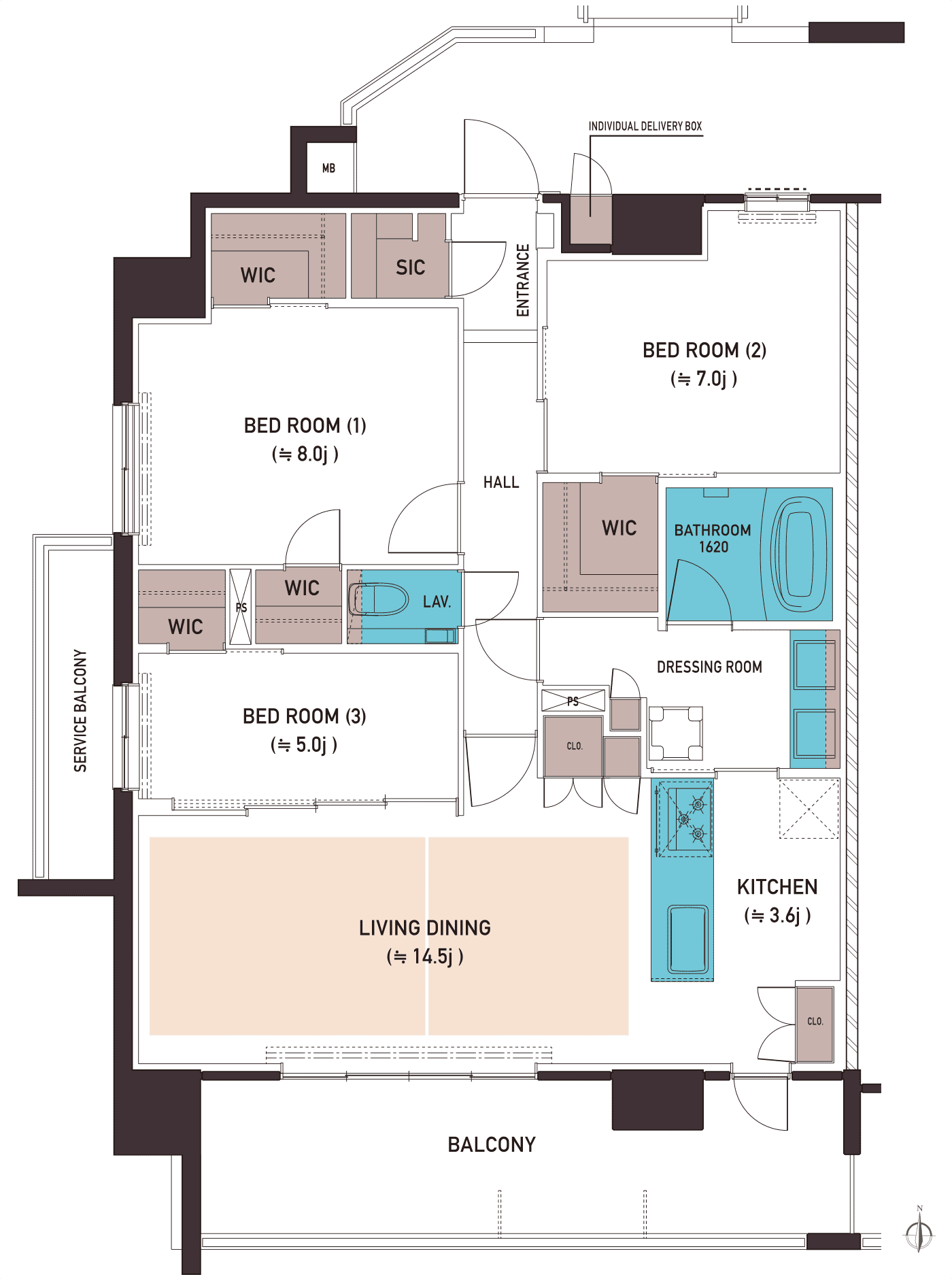
PREMIUM

QTYPE 3LDK+4WIC+SIC

Qtype
一覧に戻る
  • j=帖
  • WIC=ウォークインクロゼット
  • SIC=シューズインクロゼット
  • ※掲載の間取図は計画段階の図面を基に描き起こしたものであり、今後変更になる可能性があります。
  • ※代表の間取りを掲載しています。マリオン、バルコニー形状等は階数により異なります。