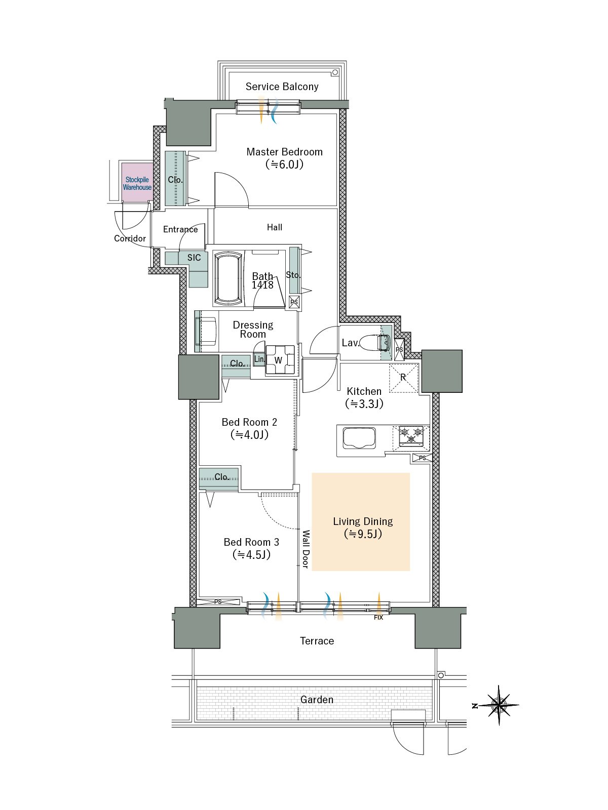
- 専有面積/66.89㎡(約20.23坪)
※備蓄倉庫面積/0.99㎡含む - テラス面積/10.80㎡(約3.26坪)
- サービスバルコニー面積/3.00㎡(約0.90坪)
- 専用庭面積/6.00㎡(約1.81坪)
- 外からプライベートスペースが見通せない奥まったクランクイン廊下

SIC=シューズインクロゼット PS=パイプスペース
※掲載の間取図は計画段階の図面を基に描き起こしたものであり今後変更になる可能性があります。代表の間取りを掲載しています。バルコニー・マリオン形状、サッシ取付位置は階数により異なります。


