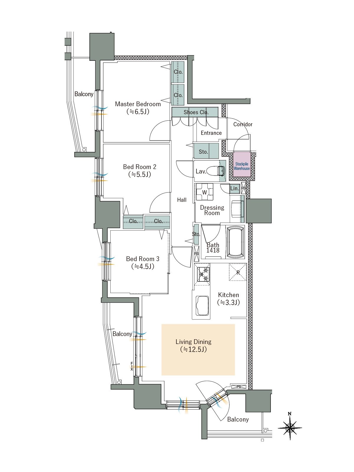
- 専有面積/74.98㎡(約22.68坪)
※備蓄倉庫面積/0.99㎡含む - バルコニー面積/12.51㎡(約3.78坪)
- 各居室や廊下にも収納を確保したプランニング

PS=パイプスペース
※掲載の間取図は計画段階の図面を基に描き起こしたものであり今後変更になる可能性があります。代表の間取りを掲載しています。バルコニー・マリオン形状、サッシ取付位置は階数により異なります。

PS=パイプスペース
※掲載の間取図は計画段階の図面を基に描き起こしたものであり今後変更になる可能性があります。代表の間取りを掲載しています。バルコニー・マリオン形状、サッシ取付位置は階数により異なります。