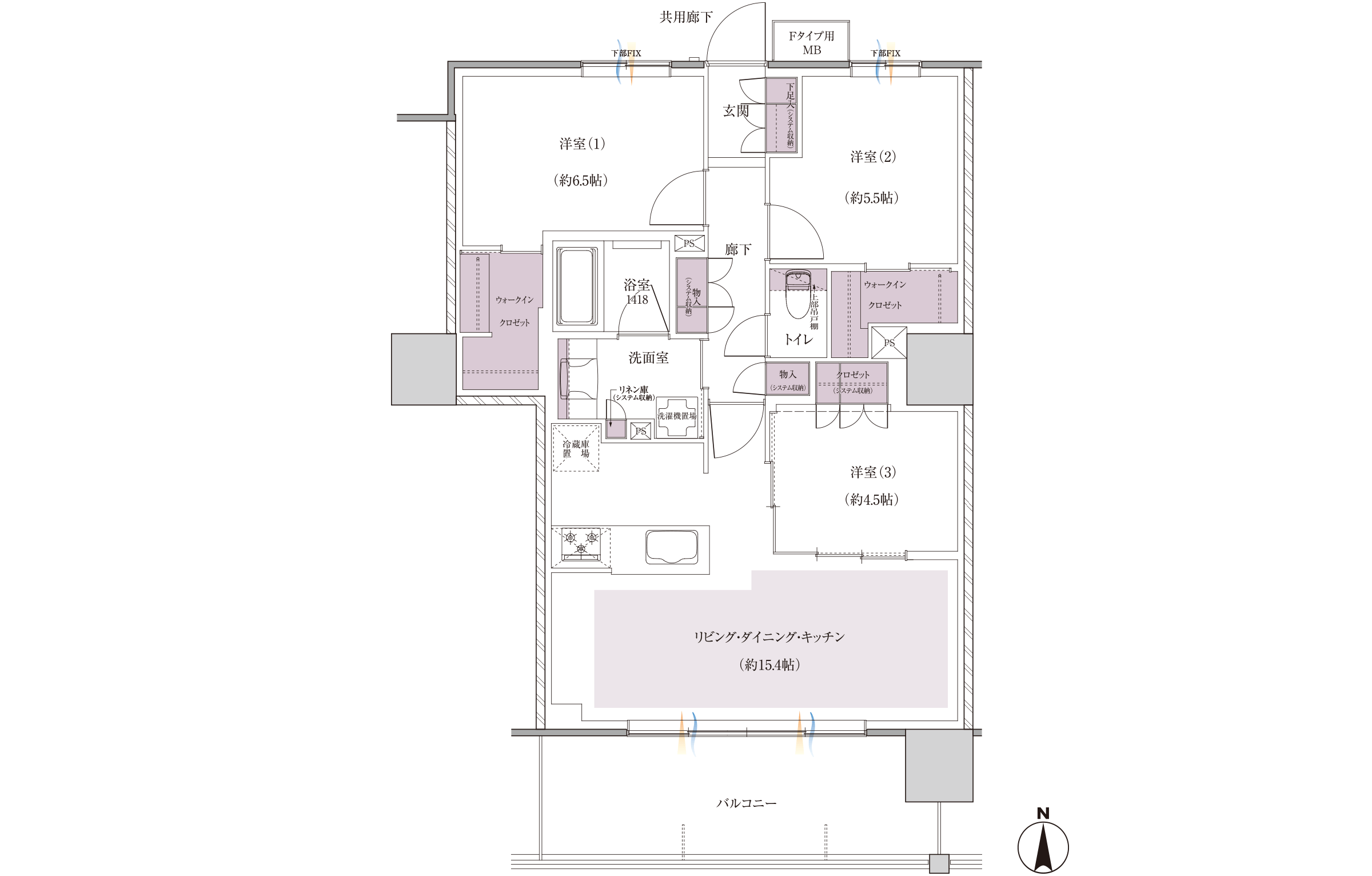
F type
3LDK+2WIC
専有面積 / 75.12㎡(約22.72坪)
■ バルコニー面積/12.30㎡(約3.73坪)

WIC:ウォークインクロゼット
※掲載の間取図は計画段階の図面を基に描き起こしてものであり、今後変更になる場合があります。
※代表の間取りを掲載しています。マリオン、バルコニー形状等は階数により異なります。
※掲載の航空写真は計画地周辺を2024年4月に撮影したものにCG加工したもので実際とは異なります。光の柱は現地の位置を表現したもので建物の規模や高さを示すものではありません。
※掲載の外観完成予想CGは計画段階の図面を基に描き起こしたもので実際とは異なる場合があります。なお、外観の細部及び設備機器等は一部省略又は簡略化しております。植栽は計画段階のもので樹種・設定位置・植高・本数等は変更となる場合があります。竣工時には完成予想CG程度には成長しておりません。
※掲載のスカイズラウンジCGは計画段階の図面を基に描き起こした外観完成予想CGに現地17階相当から撮影(2024年10月)した眺望写真を合成・加工したもので実際とは異なります。なお、細部・設備機器及び周辺建物等は一部省略又は簡略化しております。眺望は階数・住戸によって異なります。眺望・周辺環境は今後変わる可能性があり将来に渡って保証されるものではありません。
※掲載のモデルルーム写真は「PKタイプ モデルルームプラン」を2025年3月に撮影したもので一部オプション等が含まれます。また、設備・仕様等はタイプにより異なる場合があります。家具・調度品等は販売価格に含まれておりません。実際と質感・色などの見え方が異なる場合があります。また、現地17階相当から撮影(2024年10月)した眺望写真を合成、加工したもので実際の住戸からの眺望とは異なります。眺望は階数・住戸により異なります。眺望・周辺環境は今後変わる可能性があり、将来にわたって保証されるものではありません。
※掲載の環境写真は2024年7月に撮影したものです。
※掲載の距離は現地からの地図上の概算距離を表したもので、徒歩分数は1分を80mで計算し端数は切り上げております。


