優しさと洗練に満ちた、上質な時間。
光と開放感に包まれ、しかも優雅で洗練されたひとときを奏でるレジデンスを。
「レーベンサロン秋葉原 エクスペリエンス」のサンプルルームにて、レーベンシリーズがお届けする
上質な空間の豊かさをぜひお確かめください。
-
01ENTRANCE玄関扉には不正解除を防ぐサムターン回し防止機能・鎌デッドボルト、ピッキング対策に約1,000億通りのキーパターンを持つディンプルシリンダーキーを採用。また、災害対策として地震時も変形しにくい耐震枠も採用しました。
-
02MASTER BEDROOMキングサイズのベッドにドレッサー&チェアを置いてもゆとりあるスペースを確保できる主寝室です。広々としたウォークインクロゼットは季節物の衣服の収納にも困りません。
-
03BEDROOM子供部屋としても活用できるウォークインクロゼットを備えた居室です。ベッドや机を余裕をもって置くことができます。
-
04LAVATORYシャワートイレを標準装備。吊戸棚を設置することで、空間をすっきり片づけておくことができます。
-
05BATH ROOM浴槽には、微細な泡の力で浴槽に浸るだけで健康なお肌になる「たからのミラバス」※1を採用。洗濯物を乾かし、暖房効果もある浴室換気暖房乾燥機も標準装備しました。
-
06DRESSING ROOM裏面収納付き三面鏡、洗面化粧台とリネン庫など収納力にも配慮しました。洗面台は継ぎ目がなく、お手入れが簡単なボウル一体型を採用しました。
-
07KITCHENキッチンは、家事動線に配慮したオープンカウンターを採用。食器洗い乾燥機を標準装備し、忙しい毎日の家事をサポートします。
-
08LIVING DININGゆとりある広さを実現した2面採光の大型リビング・ダイニング。平面的な広さも、空間的な広さも考えたスッキリとした空間です。
※1.酸素セラミックは別売りとなります。効果効能には個人差があります。
-
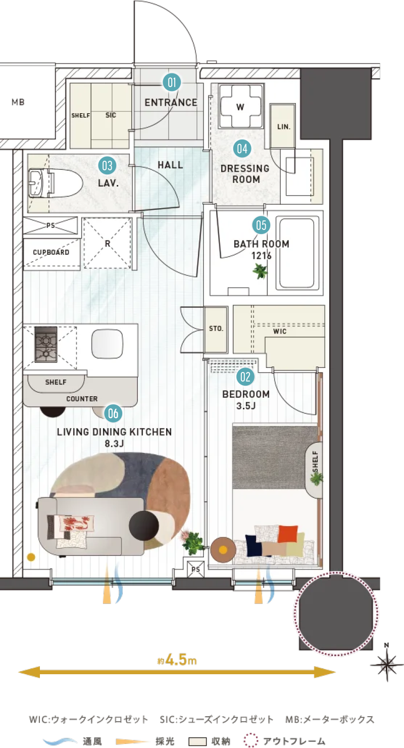
01ENTRANCE玄関には大容量のシューズインクロゼットを配置。玄関扉には不正解除を防ぐサムターン回し防止機能・鎌デッドボルト、ピッキング対策に約1,000億通りのキーパターンを持つディンプルシリンダーキーを採用。また、災害対策として地震時も変形しにくい耐震枠も採用しました。
-
02BEDROOMセミダブルベッドを置ける広さを確保した寝室です。大型のウォークインクロゼットを配置し、収納力にも優れています。
-
03LAVATORYシャワートイレを標準装備。吊戸棚を設置することで、空間をすっきり片づけておくことができます。
-
04DRESSING ROOM三面鏡、洗面化粧台とリネン庫など収納力にも配慮しました。洗面台は継ぎ目がなく、お手入れが簡単なボウル一体型を採用しました。
-
05BATH ROOM浴槽には、微細な泡の力で浴槽に浸るだけで健康なお肌になる「たからのミラバス」※1を採用。洗濯物を乾かし、暖房機能もある浴室換気暖房乾燥機も標準装備しました。
-
06LIVING DINING
KITCHENベッドルームの引き戸を開放すれば約11.8帖の開放的な空間として使える、使い勝手のよいリビング・ダイニングです。
※1.酸素セラミックは別売りとなります。効果効能には個人差があります。


